佰富彩 - 丰富的电缆桥架生产经验
咨询电话
138-6400-5123
公司电话 :0531-85766589
厂址:山东省德州市平原县复兴南路与晋德街交叉口东50米
文章来源:济南电缆桥架厂家批发 作者:电缆桥架厂家 发布时间:2018-10-27 09:50:14 浏览次数:0
浓缩机是一种连续工作的浓缩和澄清设备,它主要用于湿式选矿作业中精、尾矿浆的浓缩,也广泛用于煤炭、钢铁、化工、建材、水源、污水处理等含固料浆的浓缩和净化。浓缩机桥架结构对浓缩机的处理效果起着至关重要的作用。对于浓缩机的结构设计,目前在国内主要依据经验法和类比法。对于同一类型的浓缩机,其济南桥架结构基本一致,对于不同的给定条件,例如设备质量、跨度等,可以通过ANSYS进行优化设计。根据有限元分析结果,从选材和改进结构入手来优化浓缩机桥架结构,可为改善桥架受力状况、降低桥架质量提供科学的理论依据,也可为同类型浓缩机桥架的优化设计提供参考。
文章以NXZ-24中心液压传动浓缩机为例,采用有限元分析软件ANSYS优化模块对中心传动式浓缩机桥架进行优化设计,并把优化设计结果与传统设计的结果进行比较,以期在满足设计要求的前提下达到优化桥架结构和减轻桥架质量的目的。
1 浓缩机桥架传统设计
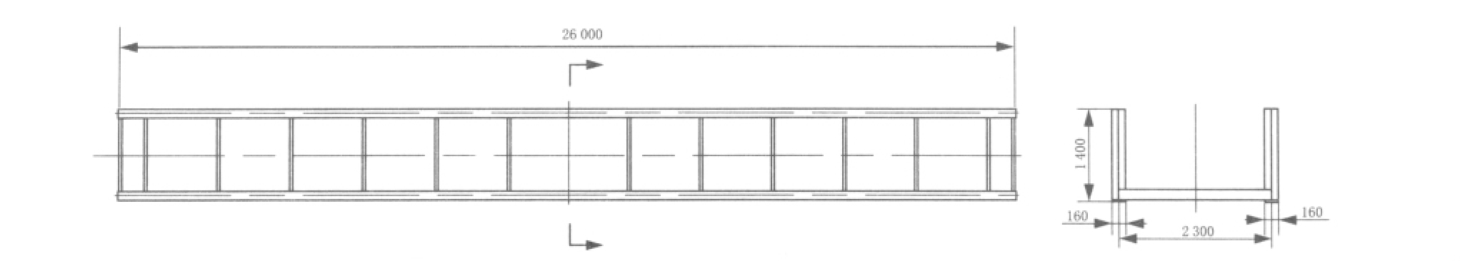
在NXZ-24浓缩机设计中,与济南桥架有关的参数有浓缩池直径 (24 m)、桥架承重 (15 t)、桥架长度 (26 m)。在传统设计中,桥架采用经验法和类比法设计,图纸用AutoCAD绘制。桥架的主要尺寸如图1所示。

图1 NXZ-24浓缩机桥架结构图
2 浓缩机桥架参数化有限元模型的建立
济南桥架设计完成后,作相应的简化处理 (简化后的有限元模型见图2),采用ANSYS参数优化设计语言APDL对浓缩机桥架进行有限元分析。

图2 简化后的浓缩机桥架有限元模型
(1)单元类型的选择。由于济南桥架采用对称结构,为了分析方便,取桥架的一半作为桥架的简化模型。选用单元类型为三维壳单元SHELL63,单元元素由4个节点组合而成,每个节点具有X、Y、Z位移方向及X、Y、Z旋转方向的6个自由度。该单元能较为真实地反应桥架结构的实际承载状况。
(2)实常数的输入。浓缩机桥架材质为Q235-A钢。主要实常数分别为:弹性模量E=2.1×105 MPa,泊松比μ=0.3。
(3)网格的划分。桥架结构几何模型采用自由网格划分,网格划分的精度能够保证求解结果尽量精确。整个模型划分的单元总数为1 598个,节点数为1 716个。
3 有限元优化设计
3.1 设计变量及目标函数的选取
对于给定跨度的浓缩机来说,其桥架结构的优化设计选取桥架质量为设计目标,目标函数就是使桥架在满足各项条件的情况下质量最轻。由于桥架采用相同的Q235-A材料,只有一种密度,因此桥架的质量仅与其体积有关,故取体积最小为目标函数。
3.2 设计变量的选取
边界约束规定了设计变量的取值范围,对于浓缩机桥架的截面结构参数,考虑实际常用材料及安装发货条件,上下翼板厚度取值范围设定为8~16 mm,腹板高度取值范围设定为800~1 400 mm,腹板厚度取值范围设定为8~16 mm。
3.3 状态变量的选取
为了保证设计满足使用要求,状态变量取两个,即应力约束和位移约束:
(1)应力约束。济南桥架结构的最大应力必须要小于所用材料的许用应力。对于拉、弯应力,有[σ]≤[σI] =176 MPa;对于剪应力,有[τ]≤[τJ] =100 MPa[3]。
(2)位移约束。桥架结构的最大挠度必须小于规定的值。根据实际经验,桥架的挠度取桥架长度的1.5/1 000~2/1 000。
将求解的各节点处应力值和Y方向挠度值按降序排列,提取最大值,并赋给相应的参数作为状态变量,将满足条件下的总体积最小作为目标函数,生成一个用参数定义模型并指定设计变量、状态变量和目标函数的分析文件,由这个文件可以自动生成优化循环文件,用来进行优化循环迭代。选择一阶优化方法,对桥架结构进行优化设计,通过31次迭代,在26步时为满足条件的最优值。
4 优化设计结果分析
从最优化结果来看,虽然体积最小 (即质量最轻),翼板板厚8.9 mm,立板板厚8.4 mm,翼板板厚可圆整为9 mm,但板厚规格不常用,因此可以选择第六步的翼板板厚10 mm、立板板厚8.4 mm材料规格,这个接近常用规格,而体积与最优化结果相差不大。因此,济南桥架上下翼板厚度取10 mm,腹板高度取1 320 mm,腹板厚度取8 mm。腹板按预留上拱度放样下料后,余料可以用于桥架立筋板和浓缩机的刮泥板等零件,因此材料利用率比较高。
与传统设计相比,优化后的桥架质量减轻了18%。桥架自重和加载后挠度为44 mm,最大应力为94.1 MPa,桥架的刚度和强度均可满足设计要求。图3为优化后的桥架静刚度变形云图。

图3 优化后的桥架静刚度变形云图
5 结语
济南桥架在工程实践中,由于某些钢结构件在设计过程中没有设计规范可供参考,设计人员仅能依据经验法和类比法进行设计,为保证设计要求,结构一般偏重,耗材比较多。因此,在设计过程中参照有限元分析优化中的优化数据,根据结构的受力状况,合理选择材料规格,可在满足设计要求的前提下,尽可能降低材料质量,节省成本。因此,将传统设计与有限元优化设计相结合的方法不失为非标产品结构设计的一种有益尝试。
济南电缆桥架安装注意事项!
在进行安装电缆桥架的时候应该注意对电缆桥架进行外观检查。电缆桥架进入施工现场,要提交以下相关的资料产品出厂合格证、省市级质监站定期检验报告等这些相关的技术鉴定文...
TIME:2018-04-12 15:02:33 KEY:济南电缆桥架